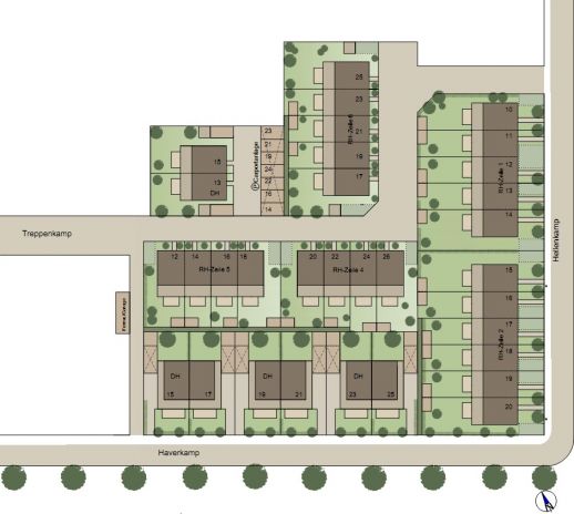
Die attraktiven Reihenhäuser der Zeilen vier und fünf im Treppenkamp 12 bis 26 befinden sich in schönster Lage des Stadtteils Kronsberg am südlichsten Rand. Sie verfügen je über eine Wohnfläche von etwa 140 Quadratmetern und bieten auf drei Ebenen mit fünf Zimmern neben moderner Architektur auch weitere Besonderheiten. Das oberste Geschoss ist bereits ausgebaut und enthält eine großzügige Dachterrasse. Selbstverständlich können Bauinteressierte dort auch ihre individuellen Wohnvorstellungen umsetzen.
Der Kronsberg ist mit seiner ökologischen Ausrichtung vor allem bei Familien beliebt. Das Wohngebiet übt eine große Anziehungskraft auf Menschen aus. Rund 18 Millionen Besucher sind vor elf Jahren auf der Expo gewesen. In Verbindung mit der Weltausstellung wurde der Stadtteil am Fuße von Hannovers zweitgrößter Erhöhung unter ökologischen Gesichtspunkten errichtet. Seitdem haben sich am Kronsberg inzwischen mehr als 7000 Familien angesiedelt – Tendenz steigend.
Wenn auch Sie Interesse haben, finden Sie hier weitere Informationen sowie den richtigen Ansprechpartner.

